PROPETY - INFORMATION
物件詳細
郡山市大町1丁目3-13
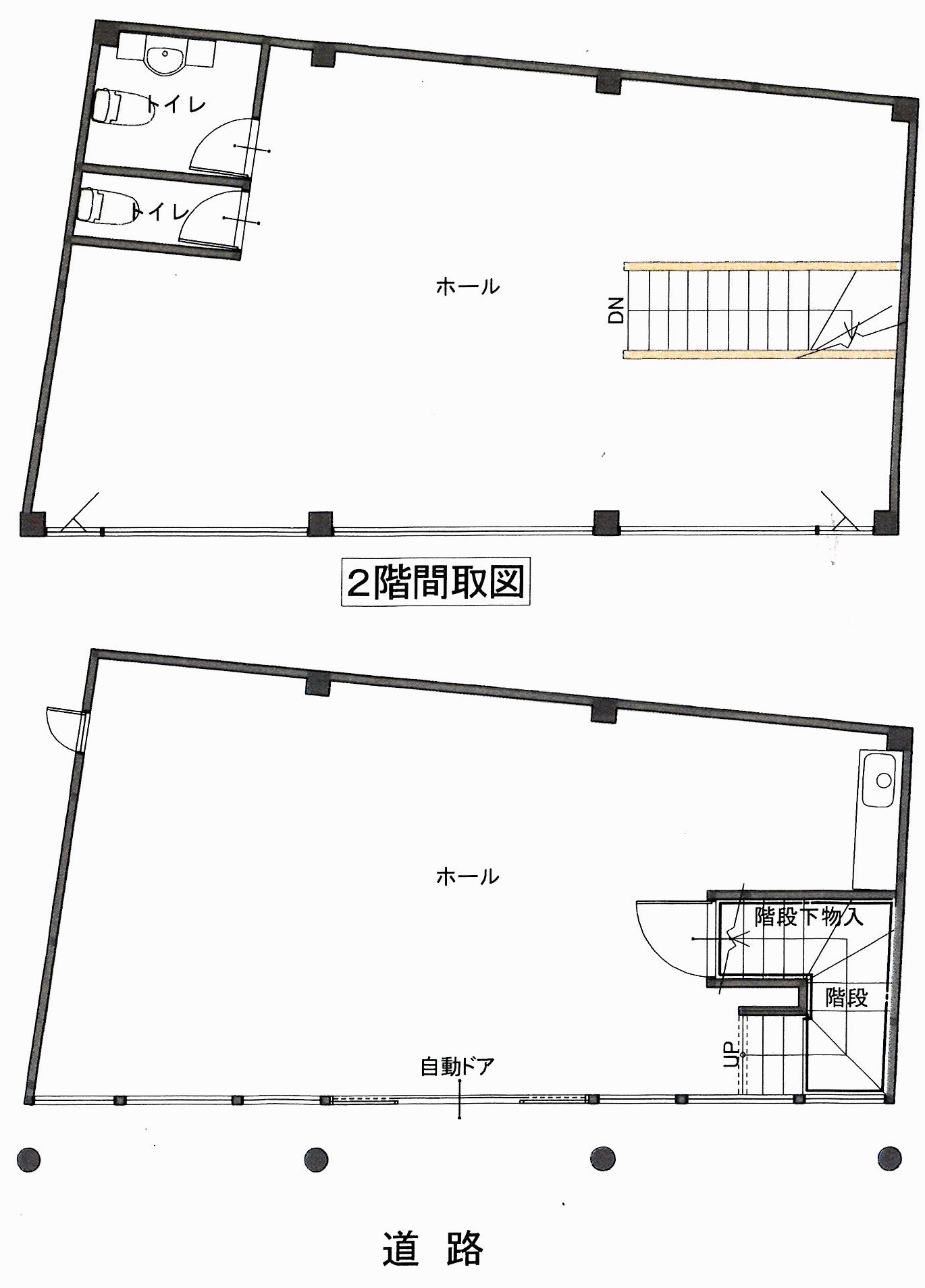
おのやビル | 1階+2階の1棟貸し
470,000円 / 月
管理 / 共益費 …
敷金 / 礼金 … 2,820,000円 / 1ヶ月 470,000円
専有面積 / 115.5㎡(34.86坪)
| 物件詳細 | |
|---|---|
| 構造・種別 | 鉄骨造陸屋根 2階建 |
| 築年月 | 1987年7月築 |
| 総戸数 | |
| 階建て / 階 | |
| 部屋向き | |
| 駐車場 | |
| 入居予定日 | 2025年12月上旬予定 |
| 最寄り駅 / バス停 | JR郡山駅 250m |
| 住宅保険 | |
| 条件等 | |
| 設 備 | ガス:都市ガス、台所:有/ミニキッチン、エアコン:有/2台(保守・管理:借主)、排水:公共下水、トイレ:有 |
| 備 考 | |
| 取引態様 | 仲介 |
| お問い合わせ番号 |
周辺地図
SNSシェア







